Solar en Albolote

Referencia: 10305

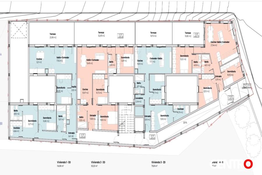
Solar para 17 viviendas y 24 plazas de aparcamiento.
Solar en permuta precio : 2 pisos y dos garajes y 300.000€.
Superficie del solar 658,31 m2.
Sup. const. computable total≤ 2,90m2/m2 (1909,1m2)
Planta baja 500,54
Planta primera488,89
Planta segunda488,89
Planta ático 330,53

1.857,93 m²scsr

Ocupación
Planta baja527,46
528,04
595,74
329,05
Ubicación
Calle Paseo de Colon, 18220 Albolote

Granada

Precio

300.000 €

1857
m2

Orientación: sur
Ext/Interior: Exterior
Planta: 4ª

Solar para 17 viviendas y 24 plazas de aparcamiento.
Solar en permuta precio : 2 pisos y dos garajes y 300.000€.
Superficie del solar 658,31 m2.
Sup. const. computable total≤ 2,90m2/m2 (1909,1m2)
Planta baja 500,54
Planta primera488,89
Planta segunda488,89
Planta ático 330,53

1.857,93 m²scsr

Ocupación
Planta baja527,46
528,04
595,74
329,05
Certificado energético
En trámite
Abrir chat
1
¿Podemos ayudarle?
Bienvenid@ a INMOBILIARIA CENTRO, gracias por contactar con nosotros.

¿En qué podemos ayudarle?